【ポスト&ビーム】太い丸太の味わいと暮らしやすさを両立した住宅街に調和する住まい
ログハウスにはさまざまなタイプがあり、立地条件やオーナーの要望もそれぞれ異なる。それをいかにカタチにするかがログメーカーの腕の見せどころだ。各社が知恵を凝らした、快適さとカッコ良さのための工夫を紹介しよう。
三重県・Cさん
設計・施工/(株)キハタトレーディング

幼い頃の将来の夢は「木で何かを作る人」だったというご主人。学生時代にハンドカットログのゲストハウスに宿泊してそのあたたかみに魅了され、ログで家を建てる夢を長年あたためてきた。選んだログハウスメーカーは、自社の山林や加工場を持つキハタトレーディングだ。「木材を加工する様子を見学し、その迫力に圧倒されました」とご夫妻。

土地が市街の住宅地にあるため、ハンドカットの雰囲気と同時に、周囲と調和する外観や、間取り・デザインの自由度の高さも重視。ポスト& ビームを選択した。太い丸太が織りなす構成美や、手仕事ならではの持ち味が生きるデザインプランを希望。外壁は漆喰、室内の壁はパイン材の板張り仕上げとした。シンプルな空間に丸太が映えている。
「丸太の魅力を楽しめる家にしたかったので、階段に使うシンボル的な柱は木が生えているようなデザインにしました。家のあちこちで丸太の断面が見えるようにしたのもこだわりです。細かい要望が伝わるように、私の考えを妻がイラストにしました」とご主人。 キハタトレーディングからの提案も参考にした。「C様には施工例をお見せして、造作や間取りの参考にしてもらいました。気に入った事例を自分たち好みにアレンジされたのが、とても素敵でしたね。洗面脱衣室への間口に飾ったアーチ状の木は、自社の山へ案内して一緒に探したものです」と、設計担当者は当時を振り返る。

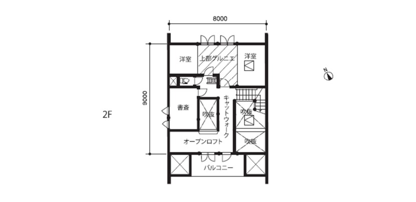
吹き抜けにかけたキャットウォークや、屋根裏のような個室など、空間のおもしろさが満載のC さん邸。一方、居住性や使い勝手にもこだわった。キッチンや洗面脱衣室などの水まわりを集中させて家事効率をアップ。収納棚も希望通りのサイズで造作し、十分な容量を確保している。「薪ストーブやオープンロフトなど、家族でどう使って遊ぼうかとても楽しみです」と、念願の木の家を手に入れた喜びを噛み締めている。
【 Detail 】
≪LDK≫




≪2階≫





≪サニタリーほか≫

≪玄関≫

【DATA】 ●使用目的/自宅 ●家族構成/夫婦+長男 ●工期/ 2022年2月~ 2023年2月 ●構造/軸組工法(ポスト&ビーム)、地上2階 ●使用ログ材/ウエスタンレッドシーダー(φ30~40cm) ●外壁の塗料/トーヨーマテリア シッケンズセトール(3回塗り) ●内壁の塗料/無塗装 ●基礎/ベタ基礎 ●ストーブ/レージェンシー ●床面積/1F 72.00㎡(21.81 坪)、2F 57.5㎡(17.42 坪)、延床面積 129.5㎡(39.24 坪) ●設計・施工/(株)キハタトレーディング https://www.kihata.co.jp TEL 0598-52-5656


取材・文/椋木敬子、写真/永田ゆか
関連キーワード
