秀逸ログハウスの間取り集【KL-29 高原都市開発(株)】
ひと口にログハウスといっても、オーナーの要望や立地条件は千差万別。カタチにあらわれた機能や意味を読み解くのも楽しいものだ。ログメーカー各社が工夫を凝らしたプランを集めてみた。 ※総工費は建築当時の税別価格です(一部を除く)。条件によって価格は変動するので、詳しくは問い合わせを。 ※モデルプランの参考価格は、温暖な平地での標準仕様の「総工費の目安(税別)」です。
コンパクトながら居住性が高いファミリー向けプラン
夫婦+子ども2人の家族が使いやすいサイズと間取りのモデルプラン。寒冷地仕様の独立玄関はプライバシーを守るのにも適している。20㎡の大きな吹き抜けで、ログハウスならではの気持ち良さを満喫。外観は平屋のようでも、中に入ると大人が建てる高さのロフトがあるのがユニークだ。もちろん間取り変更にも対応している。
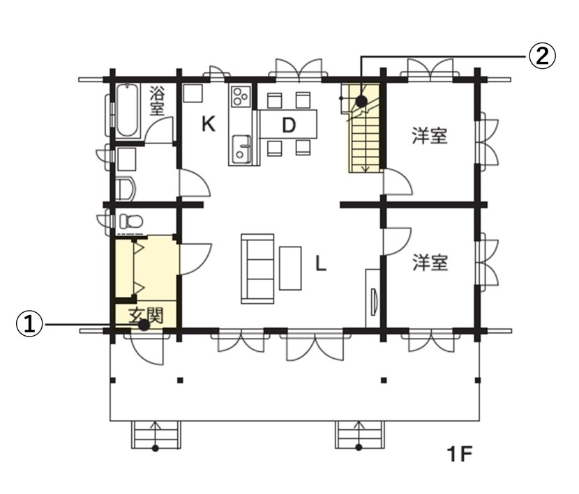
①【玄関】 寒風がリビングに吹き込みにくい独立玄関は寒冷地にうれしい仕様。玄関ホールにトイレがある配置も好評だ
②【階段】 玄関からリビングを通ってロフトに至る階段。玄関そばにある階段と比べて家族のコミュニケーションが取りやすい
③【吹き抜け】 20㎡と贅沢な大きさの吹き抜けは開放感たっぷり。ログハウスならではの良さを満喫できる。天窓つきでさらに気持ち良さがアップ

④【ロフト】 勾配天井のロフトは大人が立てる高さ。サブリビングだけでなく寝室として利用するオーナーも多い、使いでのある空間だ

【外観】 平屋のように見える外観。屋根で覆われたウッドデッキは雨の日でも使いやすく、ログ壁を日差しや風雨から守る意味でも有利
【DATA】
延床面積/28.53坪(94.32㎡) 参考価格/2200万円 構法/マシンカット 用途/自宅または別荘 階数/総2階
関連キーワード
